Aller à :

  • Aller à la recherche
  • Aller au menu principal
  • Aller au contenu
0
  • Accueil
  • J'ACHÈTE
  • JE LOUE
  • J'ESTIME
  • OUPS, C EST TROP TARD
  • NOTRE ÉQUIPE
  • Contact
  • ALERTE EMAIL
0
  • Acheter
  • Louer à l'année
Créez votre alerte e-mail
Dans un rayon de
Loyer
Mini €
Maxi €

    Faites estimer votre bien par un professionnel

    Estimer votre bien
    1. Accueil
    2. Location
    3. Laval
    4. Appartement
    5. T2
    6. T2 neuf a louer a laval
    Réf : JCLAP60001028
    Appartement
    T2 neuf à louer à LAVAL
    Nombre de pièces 2
    Nombre de chambres 1
    Salle d'eau 1
    591 € CC*

    * Charges comprises

    T2 neuf à louer à LAVAL Laval (53000)

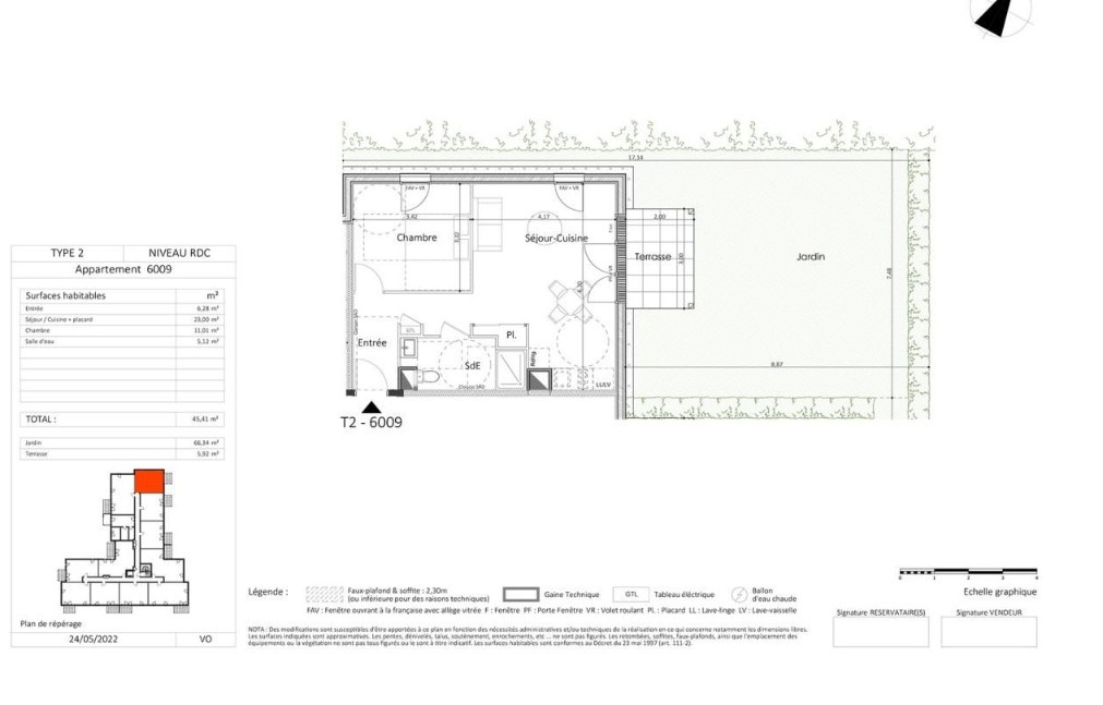
    A LAVAL, dans la résidence neuve LES JARDINS DE PHAE, nous vous proposons un appartement T2  au rez-de-chaussée du bâtiment WOOD'ED répondant au label Bâtiment Bas Carbone (BBCA) . Il comprend une entrée avec placard, un séjour cuisine donnant sur une terrasse de 5.92 m² et un jardin de 66.34 m², une chambre, une salle d'eau avec WC. Un stationnement extérieur. Chauffage individuel électrique. Eau chaude, entretien parties communes, ascenseur et espaces verts communs, compris dans les provisions sur charges mensuelles et donnant lieu à une régularisation annuelle. Les honoraires de location TTC  (à la charge du locataire) incluent le montant de rédaction des états des lieux facturé pour 136 euros TTC, après réalisation lors de l'entrée dans les lieux. Pour plus de détails sur ce logement, vous pouvez  CONTACTER L'AGENCE D'CLIK IMMO AU 02 43 53 85 67.

    • Général
    • Détails +
    • Copropriété
    • Financier
    • DPE
    • Quartier
    Caractérisque Valeurs
    Code postal 53000
    Surface habitable (m²) 45,41 m²
    Surface loi Boutin (m²) 45,41 m²
    Nombre de chambre(s) 1
    Nombre de pièces 2
    Meublé NON
    Ascenseur OUI
    Caractérisque Valeurs
    Nb de salle d'eau 1
    Cuisine Kitchenette
    Mode de chauffage Electrique
    Type de chauffage Radiateur
    Format de chauffage Individuel
    Balcon NON
    Terrasse OUI
    Cave NON
    Année de construction 2025
    Caractérisque Valeurs
    Copropriété OUI
    Caractérisque Valeurs
    Loyer CC* / mois 591 €
    Honoraires TTC charge locataire 503 €
    Dont état des lieux 136 €
    Zone soumise à encadrement des loyers OUI
    Dépôt de garantie TTC 510 €
    Charges locatives (Previsionnelles mensuelles les avec regularisation annuelle) 81 €
    DPE GES
    • Commerces et santé
    • Loisirs
    • Ecoles
    • Transports
    • Pratique
    Cette offre
    vous intéresse

    * champs obligatoires

    Les informations recueillies sur ce formulaire sont enregistrées dans un fichier informatisé par La Boite Immo agissant comme Sous-traitant du traitement pour la gestion de la clientèle/prospects de l'Agence / du Réseau qui reste Responsable du Traitement de vos Données personnelles. La base légale du traitement repose sur l'intérêt légitime de l'Agence / du Réseau. Elles sont conservées jusqu'à demande de suppression et sont destinées à l'Agence / au Réseau. Conformément à la loi « informatique et libertés », vous disposez des droits d’accès, de rectification, d’effacement, d’opposition, de limitation et de portabilité de vos données. Vous pouvez retirer votre consentement à tout moment en contactant directement l’Agence / Le Réseau. Consultez le site https://cnil.fr/fr pour plus d’informations sur vos droits. Si vous estimez, après avoir contacté l'Agence / le Réseau, que vos droits « Informatique et Libertés » ne sont pas respectés, vous pouvez adresser une réclamation à la CNIL. Nous vous informons de l’existence de la liste d'opposition au démarchage téléphonique « Bloctel », sur laquelle vous pouvez vous inscrire ici : https://www.bloctel.gouv.fr Dans le cadre de la protection des Données personnelles, nous vous invitons à ne pas inscrire de Données sensibles dans le champ de saisie libre.
    Ce site est protégé par reCAPTCHA, les Politiques de Confidentialité et les Conditions d'Utilisation de Google s'appliquent.

    Partager le bien
    Nos outils
    Imprimer Imprimer
    Calculatrice financière

    * Champ obligatoire

    Partager l'annonce

    * champs obligatoires

    Les informations recueillies sur ce formulaire sont enregistrées dans un fichier informatisé par La Boite Immo agissant comme Sous-traitant du traitement pour la gestion de la clientèle/prospects de l'Agence / du Réseau qui reste Responsable du Traitement de vos Données personnelles. La base légale du traitement repose sur l'intérêt légitime de l'Agence / du Réseau. Elles sont conservées jusqu'à demande de suppression et sont destinées à l'Agence / au Réseau. Conformément à la loi « informatique et libertés », vous disposez des droits d’accès, de rectification, d’effacement, d’opposition, de limitation et de portabilité de vos données. Vous pouvez retirer votre consentement à tout moment en contactant directement l’Agence / Le Réseau. Consultez le site https://cnil.fr/fr pour plus d’informations sur vos droits. Si vous estimez, après avoir contacté l'Agence / le Réseau, que vos droits « Informatique et Libertés » ne sont pas respectés, vous pouvez adresser une réclamation à la CNIL. Nous vous informons de l’existence de la liste d'opposition au démarchage téléphonique « Bloctel », sur laquelle vous pouvez vous inscrire ici : https://www.bloctel.gouv.fr Dans le cadre de la protection des Données personnelles, nous vous invitons à ne pas inscrire de Données sensibles dans le champ de saisie libre.
    Ce site est protégé par reCAPTCHA, les Politiques de Confidentialité et les Conditions d'Utilisation de Google s'appliquent.

    Détail des diagnostics énergétiques
    DPE GES

    Montant estimé des dépenses annuelles d'énergie pour un usage standard est compris entre 313 € et 424 € . Prix moyens des énergies indexés sur les années 2021, 2022 et 2023 (abonnements compris).

    Partager avec vos proches

    Facebook Facebook
    Messenger Messenger
    Twitter Twitter
    WhatsApp WhatsApp
    LinkedIn LinkedIn
    Copier le lien Copier le lien
    Se connecter
    Espace propriétaire
    Page d'accueil
    Adhérents

    © 2026 | Tous droits réservés | Traduction powered by Google |

    • Nos honoraires
    • Plan du site
    • Mentions légales
    • Admin
    • Nos liens
    • Politique RGPD
    • LinkedIn

    Comme beaucoup, notre site utilise les cookies

    On aimerait vous accompagner pendant votre visite. En poursuivant, vous acceptez l'utilisation des cookies par ce site, afin de vous proposer des contenus adaptés et réaliser des statistiques !

    Paramétrer

    Statistiques de visites

    Pour améliorer votre expérience, on a besoin de savoir ce qui vous intéresse !
    Les données récoltées sont anonymisées.

    ?

    Google Analytics

    requis
    ?

    Google Tag Mananger

    requis
    En savoir plus
    • Acheter
    • Louer à l'année
    Créez votre alerte e-mail
    Dans un rayon de
      Loyer
      Mini €
      Maxi €
      Surface
      Mini m²
      Maxi m²

      Particularites

      Equipements

      Exposition

      Afficher les biens

      Faites estimer votre bien par un professionnel

      Estimer votre bien